Boutique 52 Rue Charlot

A 65 m² street-level boutique showroom on Rue Charlot, Haut Marais. High ceilings at 3.90 m, dual-volume layout, historic stone wall and direct street frontage. Compact and efficient for Fashion Week appointments, pop-ups and press days.
Paris
65m²
Pricing: On request

Key highlights

• 65 m² dual-volume showroom with high ceilings
• Street frontage in prime Haut Marais corridor
• Built for Fashion Week and capsule retail formats

Gallery

Overview

Boutique 52 Rue Charlot is a 65 m² street-level showroom in the Haut Marais, on one of Paris’s most active Fashion Week streets. Two connected volumes, high ceilings and a clean white-box interior make it compact but genuinely capable for pop-ups, buyer appointments and press previews. The historic stone wall in the secondary room adds character without requiring any build.

Visibility

The boutique sits directly on Rue Charlot with a large display window giving clear street presence. The façade is clean and visible, suited to visual merchandising, product storytelling and brand signage. Footfall stays consistent throughout the day driven by concept stores, showrooms and the regular Fashion Week traffic that concentrates on this street.

Layout

The main volume at 3.90 m ceiling height is bright, open and efficient for rails, plinths and compact display setups. The secondary room at 3.75 m works well as a meeting space, styling area or quieter appointment zone. A stone feature wall in the back room gives the space real character and photographs well. The two rooms connect naturally and keep guest flow intuitive.

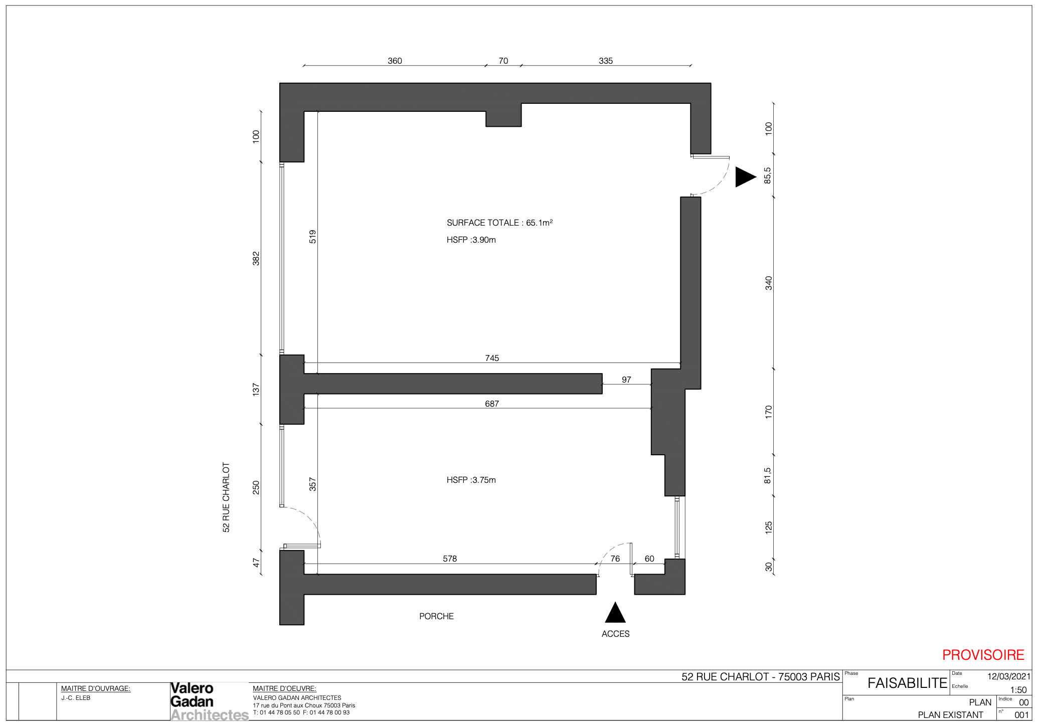
Plan and access

Address: 52 Rue Charlot, 75003 Paris. Total surface: 65 m². Ceiling heights: 3.90 m main room, 3.75 m secondary room. Metro Filles-du-Calvaire (L8) and Temple (L3). Parking at 14 Rue de Bretagne.

Blueprint & assets

Download the plan and share internally. For questions, use the request form.

Area

Rue Charlot is the primary showroom street in the Haut Marais, between Marché des Enfants Rouges and Carreau du Temple. The street concentrates a high density of Fashion Week showrooms, independent boutiques and concept stores. Café Charlot and the Enfants Rouges market are steps away, keeping the block active and credible for buyers and press throughout the day.

Request options

Tell us your dates, format, and needs. We reply fast.

Boutique 52 Rue Charlot